閉じる
不動産JP
収益不動産ポータル
不動産JP
収益不動産ポータル
AIエージェント
CFシミュレーターPro
イイ値査定
選ばれる理由
ログイン
ログイン
物件を探す
エリアから探す
CFシミュレーターPro
イイ値査定
お知らせ
会員登録
お気に入りに追加しました
TOP
物件検索結果
東京メトロ丸ノ内線「中野坂上」駅
の検索結果
物件数
5
並び順
新着順
価格安い順
価格が高い順
築浅
建物面積・専有面積が広い順
表示件数
10
25
50
75
100
棟
新着おすすめ物件検索結果
収益物件を買うなら、不動産JPにお任せ下さい。注目エリアや人気条件の収益物件を1,695件紹介しています。
ホテル
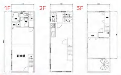
中野区売り旅館(広1)
新着
東京メトロ丸ノ内線「中野坂上駅」より徒歩8分/112.71㎡
価格
1億500
万円
所在地
東京都中野区中央2丁目
交通
東京メトロ丸ノ内線「中野坂上駅」より徒歩8分
築年月
1969年3月(築57年)
建物構造
鉄骨造
面積
建物・専有112.71㎡/土地51.86㎡
階数
3階建て
お問い合わせ
お気に入り登録
AIエージェント
収益物件を買うなら、不動産JPにお任せ下さい。注目エリアや人気条件の収益物件を1,695件紹介しています。