区分マンション
リビオライズID大手前西
大阪メトロ谷町線 谷町四丁目駅 より徒歩6分/34.96㎡
価格2,490万円
利回り4.72%
年間収益1,176,000円
物件概要
-
■オーナーチェンジ物件 月額賃料/98,000円で賃貸中
- 建物名
- リビオライズID大手前西
- 価格
- 2,490万円
- 所在地
- 大阪府大阪市中央区徳井町2丁目
- 交通
- 大阪メトロ谷町線「谷町四丁目駅」より徒歩6分
- 取引態様
- 仲介
- 元付け
- ー
- 総戸数
- ー
- 管理費
- 5,590円 / 月
- 修繕積立金
-  
- 利回り
- 4.72%
- 年間収益
- 1,176,000円
- 駐車場
- ー
- 駐輪場
- ー
- バイク置き場
- ー
- 建物構造
- SRC
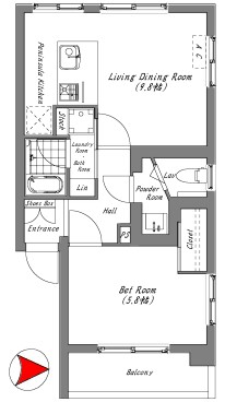
- 建物面積・専有面積
- 34.96㎡
- バルコニー面積
- ー
- ルーフバルコニー面積
- ー
- 専用庭面積
- ー
- テラス面積
- ー
- 階数
- ー
- 所在階
- 13階
- 完成時期
- 2005年2月
- 部屋番号
- ー
- 開口部向き
- ー
- 建物状況
- 中古
- 間取り
- 1DK
- 入居・引渡可能時期
- 相談
- 建物現況
- 賃貸中
- リフォーム
- ー
- リフォーム箇所
- ー
- 管理人
- ー
- 地目
- ー
- 用途地域
- 商業
- 都市計画
- ー
- 地勢
- ー
- 土地面積
- ー
- 私道負担面積
- ー
- 私道負担割合
- ー
- 土地持分
- ー
- セットバック
- ー
- 建ぺい率
- ー
- 容積率
- ー
- 総区画数
- ー
- 空き区画数
- ー
- 区画番号
- ー
- 接道状況
- ー
- 接道1
- ー
- 接道2
- ー
- 接道3
- ー
- 接道4
- ー
- 土地権利
- ー
- 国土法届出
- ー
- 法令上の制限
- ー
- 土地現況
- ー
- 土地引渡可能時期
- ー
- 特徴・設備
- 次回更新予定日
- 2026年1月31日
- 更新日
- 2025年11月2日
- 物件番号
- 300135808989
株式会社VMotion 不動産事業部
