区分マンション
エクセレンス川名
名古屋市営地下鉄鶴舞線 川名駅 より徒歩5分/75.13㎡
価格2,998万円
物件概要
-
■2024年8月 外壁等大規模改修実施済み
- 建物名
- エクセレンス川名
- 価格
- 2,998万円
- 所在地
- 愛知県名古屋市昭和区広路通5丁目
- 交通
- 名古屋市営地下鉄鶴舞線「川名駅」より徒歩5分
- 取引態様
- 仲介
- 元付け
- ー
- 総戸数
- ー
- 管理費
- 20,300円 / 月
- 修繕積立金
-  
- 利回り
- ー
- 年間収益
- ー
- 駐車場
- ー
- 駐輪場
- ー
- バイク置き場
- ー
- 建物構造
- SRC
- 建物面積・専有面積
- 75.13㎡
- バルコニー面積
- ー
- ルーフバルコニー面積
- ー
- 専用庭面積
- ー
- テラス面積
- ー
- 階数
- ー
- 所在階
- 3階
- 完成時期
- 1997年7月
- 部屋番号
- ー
- 開口部向き
- ー
- 建物状況
- 中古
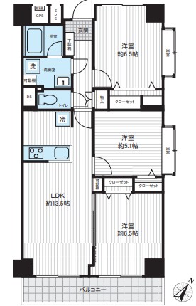
- 間取り
- 3LDK
- 入居・引渡可能時期
- ー
- 建物現況
- ー
- リフォーム
- 済
- リフォーム箇所
- ユニットバス・キッチン・洗面台・トイレ・洗濯パン・玄関収納取替/水廻り・建具交換/フローリング・天井クロス・壁クロス・水廻りクッションフロア張替
- 管理人
- ー
- 地目
- ー
- 用途地域
- 近隣商業
- 都市計画
- ー
- 地勢
- ー
- 土地面積
- ー
- 私道負担面積
- ー
- 私道負担割合
- ー
- 土地持分
- ー
- セットバック
- ー
- 建ぺい率
- ー
- 容積率
- ー
- 総区画数
- ー
- 空き区画数
- ー
- 区画番号
- ー
- 接道状況
- ー
- 接道1
- ー
- 接道2
- ー
- 接道3
- ー
- 接道4
- ー
- 土地権利
- ー
- 国土法届出
- ー
- 法令上の制限
- ー
- 土地現況
- ー
- 土地引渡可能時期
- ー
- 特徴・設備
- ー
- 次回更新予定日
- 2025年12月16日
- 更新日
- 2025年10月17日
- 物件番号
- 300136064917
株式会社VMotion 不動産事業部
