1棟アパート

キャッスル若宮

西武新宿線 都立家政駅 より徒歩9分/74.4㎡

価格5,380万円
利回り6.56%
年間収益3,528,000
スライド画像1 外観
スライド画像2  
スライド画像3  
スライド画像4  
スライド画像1 外観
スライド画像2  
スライド画像3  
スライド画像4  

物件概要

  • 西武新宿線「都立家政」駅まで徒歩約9分、同「野方」駅まで徒歩約11分。
    JR中央線「高円寺」駅まで自転車で約6分

    建物名
    キャッスル若宮
    価格
    5,380万円
    所在地
    東京都中野区若宮2丁目
    交通
    西武新宿線「都立家政駅」より徒歩9分
    取引態様
    仲介
    元付け
    総戸数
    4戸
    管理費
    修繕積立金
     
    利回り
    6.56%
    年間収益
    3,528,000円
    駐車場
    駐輪場
    バイク置き場
    建物構造
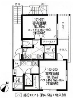
    建物面積・専有面積
    74.4㎡
    バルコニー面積
    ルーフバルコニー面積
    専用庭面積
    テラス面積
    階数
    所在階
    完成時期
    2002年2月
    部屋番号
    開口部向き
    建物状況
    間取り
    1K×4戸
    入居・引渡可能時期
    建物現況
    リフォーム
    リフォーム箇所
    管理人
    地目
    用途地域
    第一種低層住居専用
    都市計画
    地勢
    土地面積
    66.12㎡
    私道負担面積
    私道負担割合
    土地持分
    セットバック
    建ぺい率
    容積率
    総区画数
    空き区画数
    区画番号
    接道状況
    一方
    接道1
    接道2
    接道3
    接道4
    土地権利
    国土法届出
    法令上の制限
    土地現況
    土地引渡可能時期
    特徴・設備
    次回更新予定日
    2025年11月14日
    更新日
    2025年9月15日
    物件番号
    100133148187
株式会社VMotion 不動産事業部
TEL
050-5236-1375
営業時間
10時~18時
定休日
水曜
免許
東京都都知事免許(1)第111732号

掲載物件一覧